项目价值分析报告
9.7
综合评分
-
项目户型 9.2
-
交通配套 9.7
-
教育配套 10.0
-
生活配套 9.8
-
交通配套
该区域3公里内设有8个地铁站点(包括坂田北、五和、贝尔路、民治、华为、坂田、光雅园及龙华),构成便捷的轨道交通网络,距离最近的坂田北地铁站尤为便利。在1公里直线距离内,共有16个公交站点,其中距水斗老围村站仅155米,确保了公共交通的高度可达性。
-
教育配套
在3公里半径范围内,分布着132所幼儿园;同时,涵盖17所小学,例如展华实验学校(小学部)、龙华区松和小学、牛栏前小学、民顺小学及龙华第二小学等。此外,还有14所中学,如深圳市展华实验学校、龙华区第二实验学校教育集团(华仁校区)、新华中学、深圳高级中学(集团)北校区以及华南实验学校等,教育资源丰富。
-
生活配套
该区域医疗设施齐全,3公里内有5家一级及以上医院,其中距离最近的深圳市龙华区人民医院约2.5公里,为居民的健康提供坚实保障。周边3公里范围内拥有59个购物中心,诸如天虹商场(东环店)、天虹商场(坂田店)、佐阾香颂购物中心、1881MALL及嘉熙业广场等,充分满足日常生活购物需求。此外,该区域生态条件优越,3公里内共分布有75个公园,最近的一个公园距离仅142米,为居民提供了极佳的休闲环境。
免费解锁分析报告
售楼处优惠活动
免费专车接送
预约专车即可享免费专属座驾接送
184人已参与
报名还剩14天
立即报名
楼盘动态
了解更多楼盘详细
- 深房许字(2024)龙华009号
- 2024-06-06
- 住宅
- 深圳市汇珠实业有限公司
- 塔楼
- 70年
- 2026-10-01
- 610
- 中晟(深圳)物管服务有限公司
- 住宅5.38元/㎡/月
- 15979
- 190283
- 暂无信息
- 40%
- 8.30
- 有装修
楼盘问答
全部问题-
檀悦府确实挺火的,不过它的占地面积有33000平方米,应该能容纳不少住户。至于停车位,小区一般都会规划足够的车位,有车的话应该能顺利买到或租到停车位。具体情况你可以去售楼处咨询下。
-
檀悦府的配置和居住体验如何?
15***34檀悦府的配置挺不错的,据说用的是高端品牌装修材料,智能家居系统也一应俱全。至于居住舒适度,小区环境优美,绿化率高,还有各种休闲设施。不过具体还得看个人喜好和需求,建议实地考察一下。
向置业顾问咨询楼盘信息
楼盘点评
全部点评
162****7125
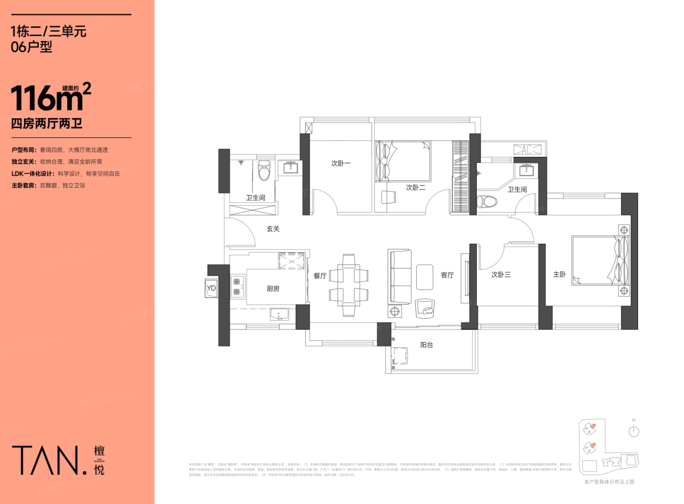
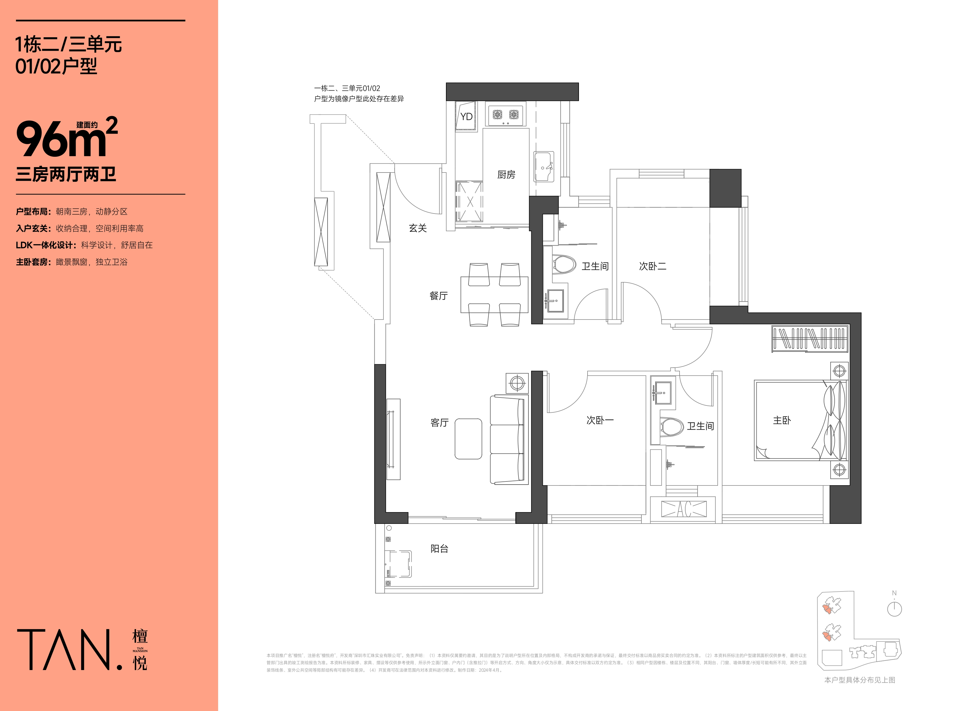
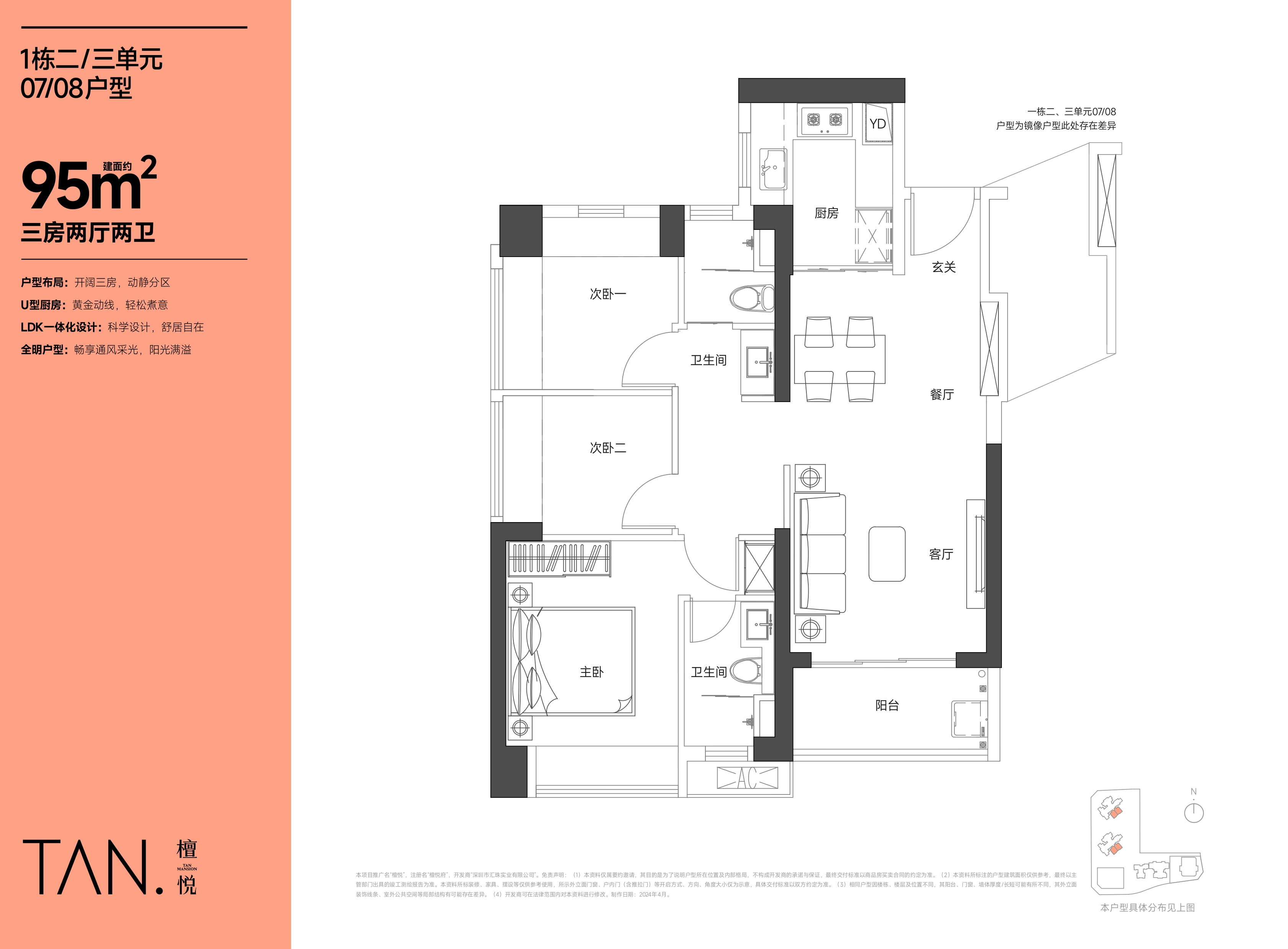
这个小区环境挺舒服,绿化做得可以,平时没事在小区里走走挺惬意。户型选择上,有81平的三房和116平的四房,格局都还行,适合不同需求的家庭。
果友7709746786
这行情下能准时交房已经算靠谱了,质量还能过得去更不容易。片区发展得慢慢看,短期别指望一步到位。
张世垒
户型共有4种选择,面积在81到116平方米之间。如果打算一步到位,建议直接选大一点的户型。绿化规划看起来不错,整体环境值得期待。关于是否能实现全景交房,目前还不好判断,有待进一步观察。
我也要点评一下
为您推荐
了解更多免责声明
本网呈现的户型图为第三方提供的非标准的参考户型图或根据第三方提供的户型图通过系统/技术等手段生成的非标准的参考户型图,不应作为您交易的决策依据。户型图上呈现的户型、面积、朝向、内部结构、功能分区仅供展示参考,实际信息请以与开发商签订的商品房买卖合同为准。 详细请阅读 《重要风险提示》 。
